秋田県大館市認証済みアカウント

@odate_city

大館市の公式アカウントです。行政や観光、防災などの大館市に関する情報を発信します。大館市からのフォローや返信は行いません。ご意見等は担当課へ直接お問い合わせください。

秋田県大館市字中城20
2011年11月に登録

ツイート

@odate_cityさんをブロックしました

このツイートを表示してもよろしいですか?これによって@odate_cityさんのブロックが解除されることはありません。

  1. 2019年12月26日

    粗大ごみ処理場の臨時休業のお知らせ 12月30日(月)は設備メンテナンスのため臨時休業します。 本年の営業は12月27日(金)までになります。 また、年明けは1月6日(月)から営業します。 【環境課】

    取り消す
  2. 2019年12月25日

    令和元年(平成31年)の大館市10大ニュースを公表しましたので、ぜひご覧ください! 【総務課】

    取り消す
  3. 2019年12月25日

    大館では15時30分ごろ部分 の最大をむかえました。わくわくサイエンスに参加した約10人のみなさんが、 前で観察しました。「ぱくっ、とかじられてるみたい!」と小学生から感想が寄せられました! 次回は来年6月21日。!  【歴史文化課】

    取り消す
  4. 2019年12月25日

    14時30分から部分 が始まります☀。観察グラスをお貸ししますので、観察希望者は まで起こしください!  【歴史文化課】

    取り消す
  5. 2019年12月25日

    今日は部分日食の日。大館郷土博物館では、14時30分16秒から太陽が欠け始めます。最大食分は0.307。希望者には観察グラスをお貸ししますので、 の窓口にお申し出ください。太陽観察箱での観察もできます。予約不要。  【歴史文化課】

    取り消す
  6. 2019年12月25日

    今日はわくわくサイエンス「雪結晶はどんな形」(自由観察)の日。顕微鏡で  を観察してみたいかたはどなたでも にお越しください。9:00-15:00(12:00-13:00除く)、予約不要。注)雪が降っていなければ観察できません。次回は1月8日! 【歴史文化課

    取り消す
  7. 2019年12月23日

    来月1/25(土)開催の 「雪と氷の観察」の参加者を募集します。雪結晶の観察や、一瞬で凍る過冷却水の実験などを通し、雪と氷の不思議を体験しましょう♪ 申込方法など詳しくは⇒ 【歴史文化課】

    取り消す
  8. 2019年12月20日

    ☆わくわくサイエンス自由観察編「今日の雪結晶はどんな形?」☆ にて、雪の結晶を観察したいかたに顕微鏡(けんびきょう)を無料でお貸し出しします。 12/26(木)、1/8(水)の2回開催。詳しくは⇒ 【歴史文化課】

    取り消す
  9. 2019年12月19日

    平日に市税の納付相談に来られないかたのため、12月22日(日)午前9時から午後1時まで市役所収納課で「休日相談窓口」を開設します。市税等の納付も受け付けますのでご利用ください。【収納課】

    取り消す
  10. 2019年12月8日

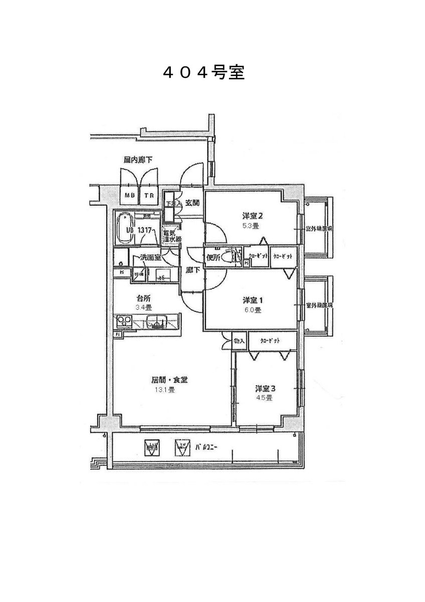
    大町借上住宅(TKマンション)入居者募集中! 12/9現在の募集戸数 2LDK:6戸 3LDK:2戸 間取り:1LDK~3LDK 今回は404号室(3LDK)を紹介します 角部屋で日当たり良好 大きめの洗面台を完備 床は落ち着いた色合いとなっています 【都市計画課】詳しくはこちら

    取り消す
  11. 2019年12月5日

    12月11日(水)~12月20日(金)は『年末の交通安全運動』期間です。これからは積雪や凍結等によって道路環境が悪化し、交通事故が多発する傾向がありますので、ドライバーも歩行者も一人ひとりが交通安全の意識を常に持ち、ゆとりを持って行動しましょう!【大館市】 

    取り消す
  12. 2019年12月4日

    広報おおだての最新号(12月号)を市ホームページに掲載しました。ぜひご覧ください! 詳しくはこちら 【総務課】

    取り消す
  13. 2019年11月30日

    大館郷土博物館の特別展示室では「日本各地の曲物と大館曲げわっぱ」を展示中です。 はもちろん、全国の色々な曲物をご覧いただけます。 大館市はうっすらと雪が積もり寒いです! ぜひ暖かい服装でお越しくださいませ。 【歴史文化課】

    取り消す
  14. 2019年11月30日

    【長走風穴館FB更新】 11/30(土)午前10時の は曇り時々雪。外気温-0.8℃、風穴温度-0.9℃でした。 今年度もたくさんのご来館ありがとうございました。 12/1~3/31は冬季閉館いたします。来年度もよろしくお願い申し上げます(^^♪ 【歴史文化課】

    取り消す
  15. 2019年11月28日

    明日、11月30日(土)に『交通安全市民大会』をタクミアリーナで開催します! 式典のほか、県警音楽隊による演奏、『いつか&奈良ひより』さんによる交通安全の歌披露など催しも盛り沢山☆ 午後1時30分に開会でどなたでも観覧できますので、ぜひご来場ください! 【大館市】

    取り消す
  16. 2019年11月26日

    【長走風穴館FB更新】 11/27(水) 午前10時の は晴れ。外気温0.0℃、風穴温度-0.5℃。 今朝は冷え込み、9時時点では外気温-2.7℃でした。散策路周辺も霜で白く覆われていました。 今年の開館は11/30(土)まで、残り日数もわずかです。 【歴史文化課】

    取り消す
  17. 2019年11月25日

    【長走風穴館FB更新】 11/26(火) 午前10時の は晴れ。外気温2.2℃、風穴温度0.5℃。 地中から吹き出す空気の湿度が高いためでしょうか、風穴周辺にはたくさんのコケ類が見られます。 今年の開館は11/30(土)までです。 【歴史文化課】

    取り消す
  18. 2019年11月22日

    【長走風穴館FB更新】 11/22(金) 午前10時の は曇り。外気温3.2℃、風穴温度0.0℃でした。 昨日の雪が残っており、コケモモも雪をかぶっていました。白い雪にヤマワサビの緑が目立ちます。 今年の開館は11/30(土)までです。 【歴史文化課】

    取り消す
  19. 2019年11月22日

    【鳥潟会館FB更新】 ただいま では、あざやかな落ち葉のじゅうたんがまぶしいです。雪が降るなど寒い日が続いていますので、寒さ対策をしてお越しください! FB→ 【歴史文化課】

    取り消す
  20. 2019年11月21日

    平日に市税の納付相談に来られないかたのため、11月24日(日)午前9時から午後1時まで市役所収納課で「休日相談窓口」を開設します。市税等の納付も受け付けますのでご利用ください。【収納課】

    取り消す

読み込みに時間がかかっているようです。

Twitterの処理能力の限界を超えているか、一時的な不具合が発生しています。やりなおすか、Twitterステータスで詳細をご確認ください。

    こちらもおすすめです

    ·